首页
集团概况
集团简介
集团领导
部门设置
下属企业
组织架构
集团产业
新闻中心
威宁要闻
经营管理
企业党建
清廉威宁
安全生产
信息公开
工作制度
信息公开年度报告
威宁专题
社会责任
企业风采
企业文化
企业文化
威宁文化
笔韵视界
人才招聘
公告
集团公告
威宁资产交易平台信息公告
首页
公告
集团公告
正文
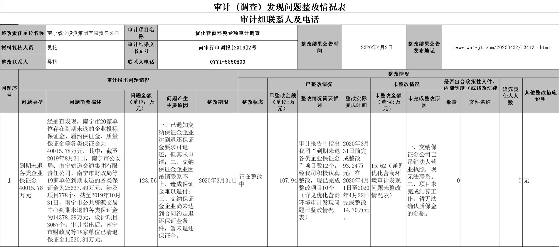
审计(调查)发现问题整改情况表
发布时间:2020-06-22
点击量: